Atrakcyjny lokal biurowy w Krośnie
Krosno, Tysiąclecia 3
138 000 PLN
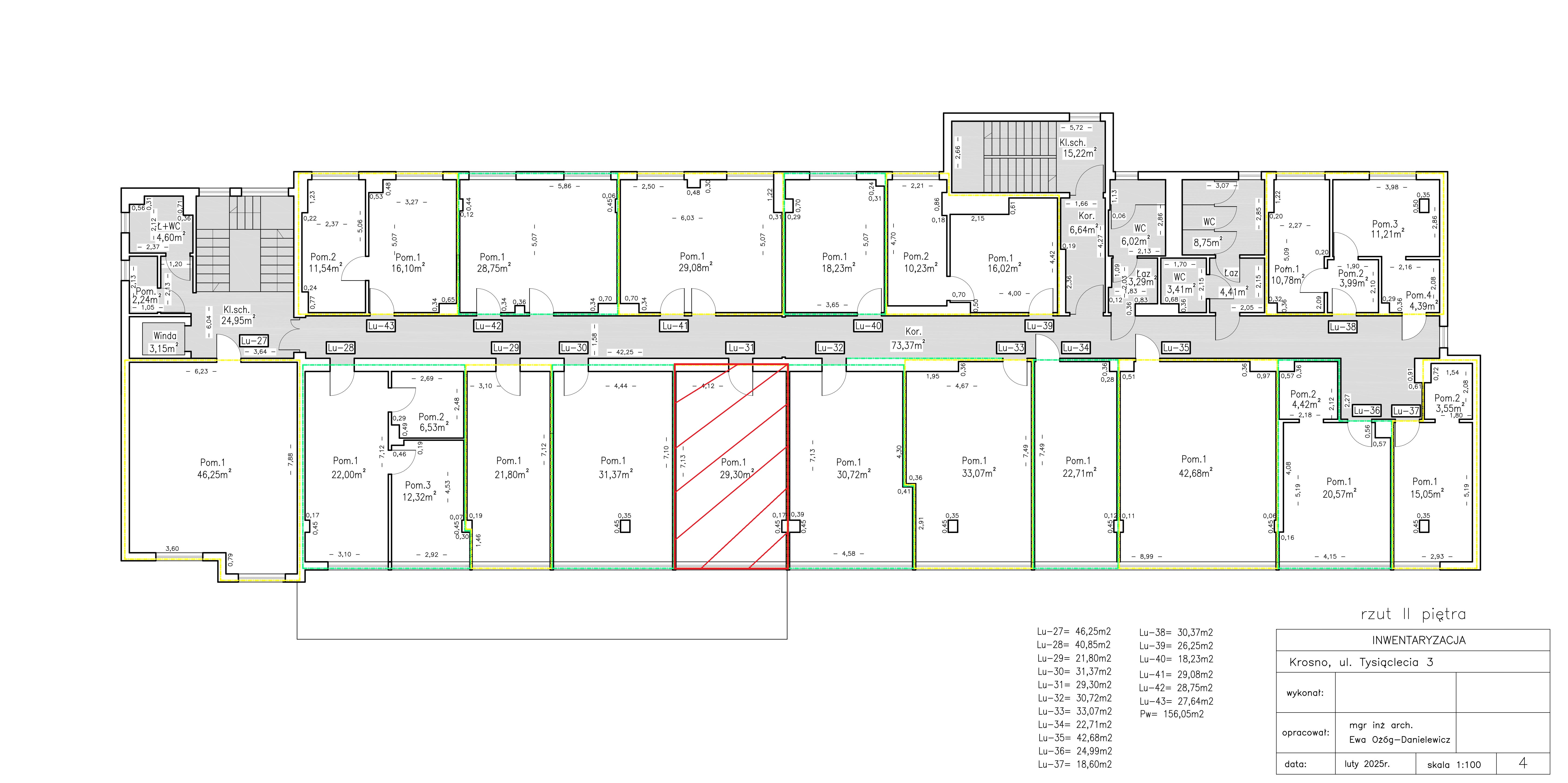
Oferujemy na sprzedaż lokal biurowy położony w pobliżu centrum Krosna, przy ul. Tysiąclecia 3.
Powierzchnia lokalu: 29,30 m2
Lokal znajduje się na II piętrze trzykondygnacyjnego budynku biurowego.
W budynku zainstalowana jest winda.
Budynek wyposażony jest w instalacje: elektryczną, wodociągową, kanalizacja sanitarna, c.o. z własnej kotłowni na gaz, wentylacji mechanicznej, klimatyzacji, pożarowej, internetowej.
Stan techniczny budynku jak oraz oferowanych lokali: bardzo dobry.
Cena lokalu: 138 000 zł
Istnieje możliwość zakupu innych lokali na II piętrze.
Kontakt:
693 77 97 93
Niniejsze ogłoszenie jest wyłącznie informacja handlową i nie stanowi oferty w myśl art. 66, paragraf 1. Kodeksu Cywilnego.
cena:
miejscowość:
ulica:
numer:
ilość kondygnacji:
piętro:
ilość pokoi:
powierzchnia:
powierzchnia działki:
typ trasakcji:
miejscowość:
ulica:
numer:
ilość kondygnacji:
piętro:
ilość pokoi:
powierzchnia:
powierzchnia działki:
typ trasakcji:
138 000 PLN
Krosno
Tysiąclecia
3
2
2
1
29.30 m²
0.00 m²
sprzedaż
Krosno
Tysiąclecia
3
2
2
1
29.30 m²
0.00 m²
sprzedaż
Lokalizacja
Kontakt
Biuro Obrotu NieruchomościamiProInwestycje sp. z o.o.
al. Marcinkowskiego 11
61-827 Poznań
Marcin Pietrzak
695 43 42 41
pietrzak.marcin@pro-inwestycje.pl
Inne kontakty:
661 40 47 00
wyślij maila »
